La Iglesia del Santísimo Redentor de Las Chumberas en la Laguna, ha recibido el Premio al Mejor Edificio del Mundo en el Festival Mundial de Arquitectura (World Architecture Festival, WAF), celebrado en noviembre en el Centro de Convenciones de Miami, en Estados Unidos.
Los Premios WAF, están considerados uno de los principales reconocimientos del sector arquitectónico a nivel mundial.
El proyecto, del arquitecto canario Fernando Menis, obtuvo además el Premio Especial al Mejor Edificio Pequeño y el Premio al Mejor Edificio Público, de forma que fue la obra más reconocida de esta edición.
El jurado destacó “la intensidad de la arquitectura y el modo en que se ha utilizado la luz para moldear la calidad y la naturaleza de los espacios interiores, realzando la cualidad táctil de las superficies”.
También tuvo en cuenta el uso de la luz natural, que “configura un espacio austero que invita a la reflexión”. Sin ventanas, el edificio se ilumina mediante la luz cenital y la luz de la cruz sin acristalar. A lo largo del día, la luz cambiante resalta diferentes áreas del espaciio.
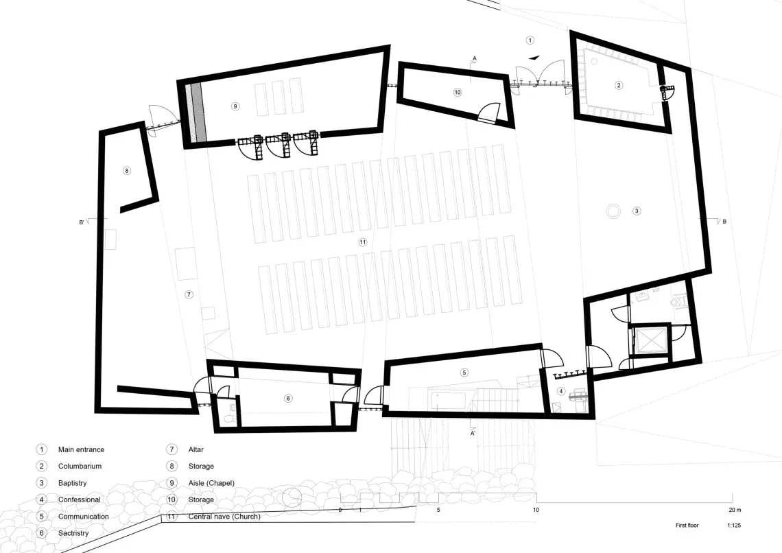
Financiada mediante donaciones, el flujo irregular de contribuciones condicionó su diseño, compuesto por cuatro volúmenes independientes construidos por fases.
Los dos primeros, que albergan el centro comunitario, se completaron en dos años y han estado en funcionamiento desde entonces, mientras que las estructuras restantes se terminaron 16 años después, conforme se disponía de financiación.
Inspirada en el paisaje volcánico, "presenta formas macizas y toscas que contrastan con el entorno edificado. Estrechas grietas entre las estructuras, rellenas con metal y vidrio escultóricos, filtran la luz natural para crear un interior minimalista y espiritual", explica su candidatura.


















